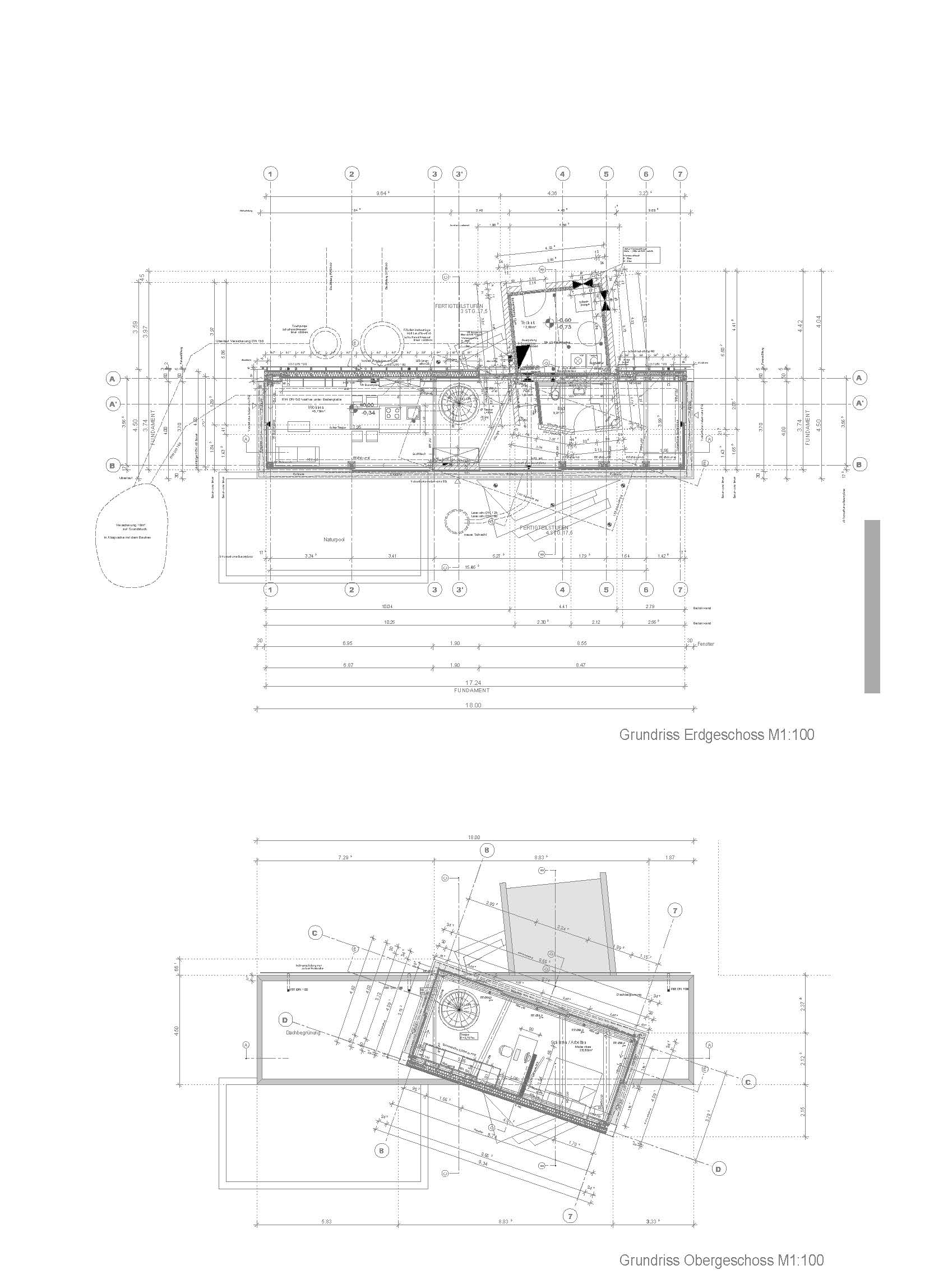
Wohnen V

Wohnen auf engem Grundstück nahe am Baum. Das OG verdreht sich, damit die Baumkrone Platz hat. Ziel: Vom Zimmer aus einen Apfel ernten. Stahl-Holz-Architektur. Fassade Alucobond verklebt.